In esecuzione - Ristrutturazione e realizzazione restauro di case antiche, progettazione per il ripristino di immobili di pregio. Costruzione case in legno ecologiche ed antisismiche. Suzzara, Mantova.

Vai ai contenuti

Menu principale:

In esecuzione

Prodotti > Restauri > In esecuzione

Restauro edificio del XVII° secolo - Fènis (Valle d'Aosta) - Residence "I Castagni del Ferrùn"

VEDUTA EST
VEDUTA OVEST
VEDUTA NORD
SEMINTERRATO - ALLOGGIO 1
SEMINTERRATO - ALLOGGIO 2
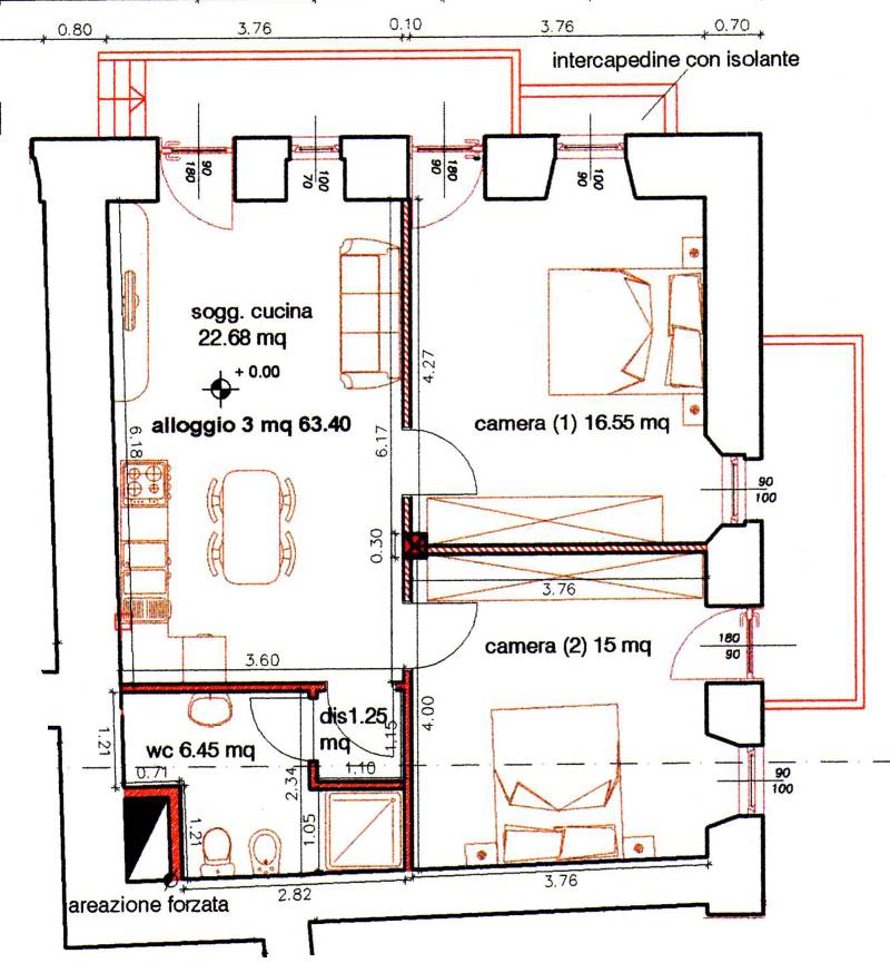
PIANO TERRA - ALLOGGIO 3
PIANO TERRA - ALLOGGIO 4
PRIMO PIANO - ALLOGGIO 5
PRIMO PIANO - ALLOGGIO 6
COMPRENDE SOTTOTETTO (non abitabile)
SECONDO PIANO - ALLOGGIO 7
COMPRENDE SOTTOTETTO (non abitabile)
PIANO TERRA - CHALET 1
PRIMO PIANO - CHALET 2
PARCHEGGI
MAPPALI
cerca nel sito
Torna ai contenuti | Torna al menu